IVOIRE PASTRY BOUTIQUE in SAIGON
IVOIRE PASTRY LUXURY BOUTIQUE in SAIGON
LUXURY RETAIL • COMPLETED • 2018
CLIENT: Private
ARCHITECTURE & INTERIOR: T3 ARCHITECTS
BRANDING: Wedothatstuff (Paris)
LIGHTING DESIGN: KOBI STUDIO (Vietnam)
ART CERAMIST: Agnes THIERRY (Vietnam)
ART METAL: Sebastien SICOT – Blacksmith (Vietnam)
FACADE natural lime Plastering: ATC (Vietnam)
PHOTOS: That’s Luminous
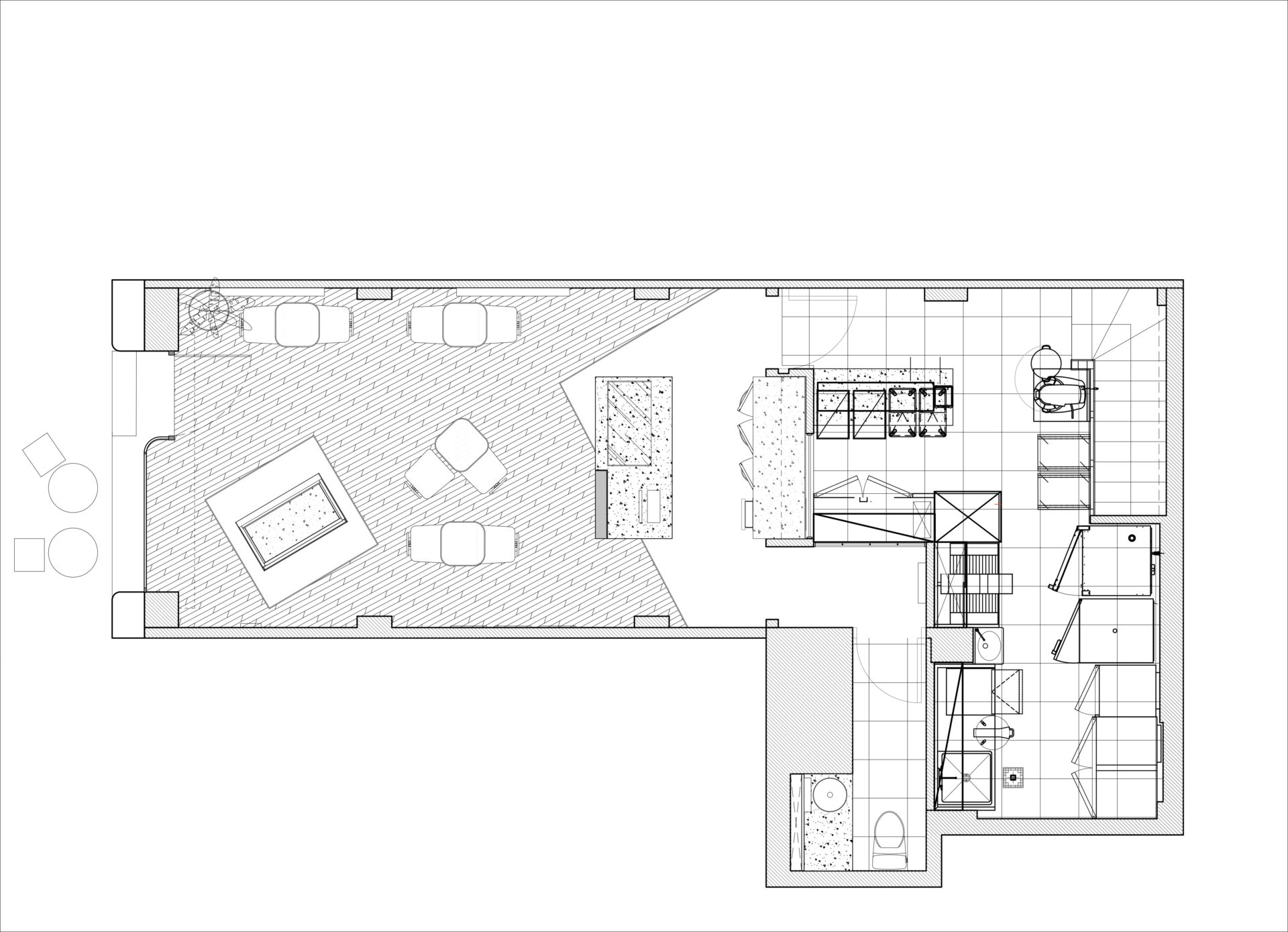
T3 designed the new IVOIRE Luxury PASTRY BOUTIQUE which proposed “homemade” Pastries by Doan talented Chief! The main intention of T3 was to recover the “historical” aspect of the Building designed by the French in 1924 but bringing a contemporary and luxury touch to the Interior of the Boutique. The 2 main displays have been designed to present the Pastries like “jewels”. All materials are natural and bring both comfort and luxury: solid wood, white marble, brass metal, polished concrete. Tables and mirrors have been designed by T3 and tailor-made by the main contractor while the chairs are from “District Eight” (indoor) and “Fermob” (outdoor). Kobi Lighting did an elegant Lighting design with high-end products; Diamond logo was designed by Wedothatstuff who also took care of all the branding. T3 invited Agnes Thierry to realize this wonderful logo in ceramic, as a real Art piece, in collaboration with Sebastien Sicot for brass metal letters. The lime plaster of the facade was done by ATC with the purpose to respect the existing brick walls and allow it to “breathe” properly. Lime plaster is also much more elegant than basic acrylic painting used by 99% of the designer working on historical building in Vietnam due to very low skills in the Heritage field… Kitchen design and equipment is high-end for delicious Pastries and “petit-gateaux”.
IVOIRE PASTRY Layout by T3 Architects

IVOIRE PASTRY Section by T3 Architects



